

Appartement - Mgr. Aengenentlaan - Warmond
overzicht
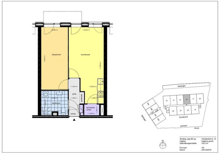
Luxe huurwoning op landgoed Mariengaerde – Warmond?? Adres: Monseigneur Aengenentlaan 3a054, WarmondBeschikbaar vanaf: 31 oktober 2025Huurperiode: Onbepaalde tijd (minimaal 12 maanden)Oplevering: niet Gemeubileerd, gestoffeerdServicekosten: €205 p/m (incl. voorschot gas, water & licht)Welkom op Mariengaerde: een oase van rust en comfort, gelegen in een prachtige omgeving in het groene Warmo...
- 3
- 2
- 60
- 60
- false

Hestiva
Waarom registreren?
Door je GRATIS te registreren bij Hestiva kun je profiteren van handige functies zoals het opslaan van zoekopdrachten en ontvangen van meldingen, waardoor het vinden van een woning een stuk gemakkelijker wordt. Ontvang als eerste de nieuwste woningen die overeenkomen met jouw zoekopdracht en kom in contact met aanbieders via ons platform. Maak vandaag nog een account aan en vind jouw ideale woning op Hestiva!