

Appartement - Tramstraat - Katwijk
overzicht
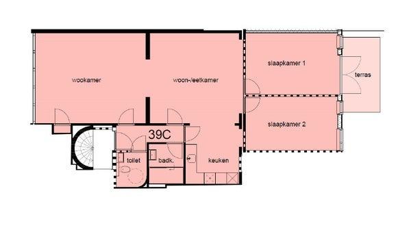
Mooi licht 3-kamerappartement met een balkon op het zuiden, aparte berging en een overdekte parkeerplaats. Dit royale appartement van 90m2 ligt op 10 minuten lopen vanaf het centrum en het strand.Op de begane grond bevindt zich de centrale hal met brievenbussen en toegang tot het trappenhuis en lift.Op de 2de verdieping komt u binnen in een ruime lange hal, waar aan de linkerzijde het toilet zi...
- 3
- 2
- 90
- 90
- false

Hestiva
Waarom registreren?
Door je GRATIS te registreren bij Hestiva kun je profiteren van handige functies zoals het opslaan van zoekopdrachten en ontvangen van meldingen, waardoor het vinden van een woning een stuk gemakkelijker wordt. Ontvang als eerste de nieuwste woningen die overeenkomen met jouw zoekopdracht en kom in contact met aanbieders via ons platform. Maak vandaag nog een account aan en vind jouw ideale woning op Hestiva!