

Appartement - Cacaostraat - Bussum
overzicht
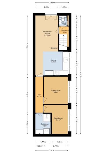
Dit appartement aan de Cacaostraat 88 in Bussum biedt een praktische indeling met een lichte woonkamer en open keuken, een aparte slaapkamer en een fijn balkon. Gelegen in een groene, rustige straat, zijn alle voorzieningen dichtbij. Het is een ideale woonplek voor starters of stellen die de gezelligheid van het centrum van Bussum willen ervaren. Geniet van de nabijheid van winkels en openbaar ...
- 1
- 1
- 70
- 70
- false

Hestiva
Waarom registreren?
Door je GRATIS te registreren bij Hestiva kun je profiteren van handige functies zoals het opslaan van zoekopdrachten en ontvangen van meldingen, waardoor het vinden van een woning een stuk gemakkelijker wordt. Ontvang als eerste de nieuwste woningen die overeenkomen met jouw zoekopdracht en kom in contact met aanbieders via ons platform. Maak vandaag nog een account aan en vind jouw ideale woning op Hestiva!