
Appartement - Pieter van der Doesstraat - Amsterdam
overzicht
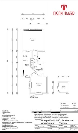
Belangrijk! Dit geldt uitsluitend voor een woningruil; je moet een huurwoning hebben om met deze huurwoning te kunnen ruilen. OMSCHRIJVING: Ik bied mijn huurwoning aan om mee te ruilen. Het gaat om een woning in de stadsdeel De Baarsjes. Het is een 3-kamer appartement PLUS een extra kamer die kan dienen als kinderkamer of werkplek, dus 4 kamers. De woning is gelegen in een gezellige buurt met ...
- 4
- 60
- 60
- false
Hestiva
Waarom registreren?
Door je GRATIS te registreren bij Hestiva kun je profiteren van handige functies zoals het opslaan van zoekopdrachten en ontvangen van meldingen, waardoor het vinden van een woning een stuk gemakkelijker wordt. Ontvang als eerste de nieuwste woningen die overeenkomen met jouw zoekopdracht en kom in contact met aanbieders via ons platform. Maak vandaag nog een account aan en vind jouw ideale woning op Hestiva!