
Appartement - Sijsjesstraat - Amsterdam
overzicht
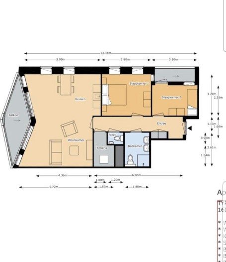
Belangrijk! Dit geldt uitsluitend voor een woningruil; je moet een huurwoning hebben om met deze huurwoning te kunnen ruilen. Charmante jaren 30 arbeiderswoning in de Vogelbuurt.De woning heeft een eigen opgang met 2 verdiepingen. Boven zijn 2 ruime slaapkamers, een badkamer, wasmachinehok en 1 kleine, oorspronkelijke bergruimte, die nu gebruikt wordt als 3e (kleine) slaapkamer. Hierin staat ee...
- 3
- 96
- 96
- false
Hestiva
Waarom registreren?
Door je GRATIS te registreren bij Hestiva kun je profiteren van handige functies zoals het opslaan van zoekopdrachten en ontvangen van meldingen, waardoor het vinden van een woning een stuk gemakkelijker wordt. Ontvang als eerste de nieuwste woningen die overeenkomen met jouw zoekopdracht en kom in contact met aanbieders via ons platform. Maak vandaag nog een account aan en vind jouw ideale woning op Hestiva!