
Appartement - Osdorpplein - Amsterdam
overzicht
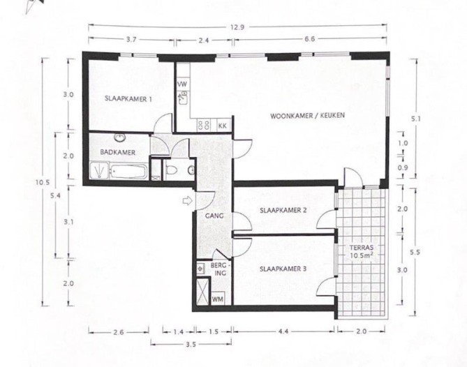
Belangrijk! Dit geldt uitsluitend voor een woningruil; je moet een huurwoning hebben om met deze huurwoning te kunnen ruilen. Te ruil aangeboden: Modern 3-kamer appartement aan het Osdorpplein (Amsterdam Nieuw-West) In hartje Osdorp, direct aan het levendige Osdorpplein, bieden wij een modern en instapklaar 3-kamer appartement aan voor woningruil. Deze woning combineert comfort, energiezuini...
- 2
- 80
- 80
- false
Hestiva
Waarom registreren?
Door je GRATIS te registreren bij Hestiva kun je profiteren van handige functies zoals het opslaan van zoekopdrachten en ontvangen van meldingen, waardoor het vinden van een woning een stuk gemakkelijker wordt. Ontvang als eerste de nieuwste woningen die overeenkomen met jouw zoekopdracht en kom in contact met aanbieders via ons platform. Maak vandaag nog een account aan en vind jouw ideale woning op Hestiva!