
                Huis - Touwslagerstraat - Amsterdam
                                Bewaar als favoriet
                                 
                            
                            
                        
                                770
                                                                      p.m.
                                                            
                        
                            2 dagen geleden
                                                            Actief
                            
                        
                        
                            
                                #307188
                            
                        
                    overzicht
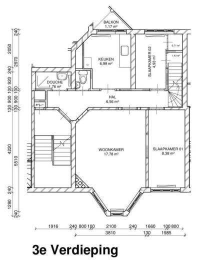
Deze 4 kamer maisonnette is gelegen in een sociale woning op Bickerseiland, in een rustige en aangename buurt. De woning biedt prachtig uitzicht op het water, wat bijdraagt aan de serene omgeving. Het is belangrijk om te weten dat deze woningruil uitsluitend geldt voor huurwoningen.
- 4
 - 84
 - 84
 - false
 
Hestiva
Waarom registreren?
Door je GRATIS te registreren bij Hestiva kun je profiteren van handige functies zoals het opslaan van zoekopdrachten en ontvangen van meldingen, waardoor het vinden van een woning een stuk gemakkelijker wordt. Ontvang als eerste de nieuwste woningen die overeenkomen met jouw zoekopdracht en kom in contact met aanbieders via ons platform. Maak vandaag nog een account aan en vind jouw ideale woning op Hestiva!