
Appartement - Loenermark - Amsterdam
overzicht
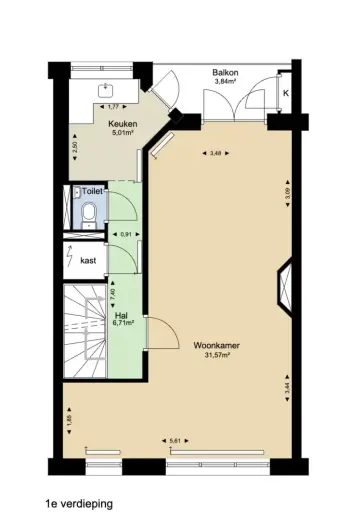
Details:Size of the property: (m2) approximately 80 m2Number of bedrooms: 2Number of bathrooms: 1Type of house: ApartmentQuality of public transportation: GoodConstruction year of the building: 1976Interior decoration: FurnishedFlooring: LaminateAlso in this rental apartment:-Parking possibility: Permit (no waiting list)-Separate shower-Elevator-Storage: box-Parking spot-Separate toilet-Balcony...
- 3
- 2
- 80
- 80
- false
Hestiva
Waarom registreren?
Door je GRATIS te registreren bij Hestiva kun je profiteren van handige functies zoals het opslaan van zoekopdrachten en ontvangen van meldingen, waardoor het vinden van een woning een stuk gemakkelijker wordt. Ontvang als eerste de nieuwste woningen die overeenkomen met jouw zoekopdracht en kom in contact met aanbieders via ons platform. Maak vandaag nog een account aan en vind jouw ideale woning op Hestiva!