
Appartement - Rapenburg - Amsterdam
Bewaar als favoriet
1185
p.m.
2 maanden geleden
Actief
#299598
overzicht
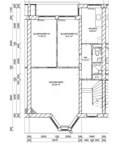
Reageren mogelijk tot: 31 oktober 2025 | Doelgroep: Gezinnen | Contractvorm: Onbepaalde tijd | Woningtype: Portiekflat | Huurtype: Vrije sector | Energielabel: C | Minimuminkomen: € 49.670
- 4
- 74
- 74
- false
Hestiva
Waarom registreren?
Door je GRATIS te registreren bij Hestiva kun je profiteren van handige functies zoals het opslaan van zoekopdrachten en ontvangen van meldingen, waardoor het vinden van een woning een stuk gemakkelijker wordt. Ontvang als eerste de nieuwste woningen die overeenkomen met jouw zoekopdracht en kom in contact met aanbieders via ons platform. Maak vandaag nog een account aan en vind jouw ideale woning op Hestiva!