

Appartement - Marathonweg - Amsterdam
overzicht
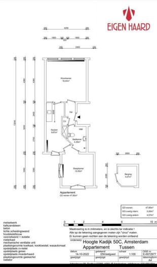
Belangrijk! Dit geldt uitsluitend voor een woningruil; je moet een huurwoning hebben om met deze huurwoning te kunnen ruilen.Woningruil aangeboden: gerenoveerd appartement van 53 m² aan de MarathonwegIk bied mijn zeer nette en recent gerenoveerde appartement van 53 m² aan voor woningruil. De woning is instapklaar en voorzien van:• Nieuwe badkamer, stijlvol en praktisch ingericht• Nette keuken m...
- 3
- 2
- 53
- 53
- false

Hestiva
Waarom registreren?
Door je GRATIS te registreren bij Hestiva kun je profiteren van handige functies zoals het opslaan van zoekopdrachten en ontvangen van meldingen, waardoor het vinden van een woning een stuk gemakkelijker wordt. Ontvang als eerste de nieuwste woningen die overeenkomen met jouw zoekopdracht en kom in contact met aanbieders via ons platform. Maak vandaag nog een account aan en vind jouw ideale woning op Hestiva!